Lotissements

LES INSCRIPTIONS SONT OUVERTES POUR LE NOUVEAU LOTISSEMENT : LA CAILLAUDERIE ! 

Vous souhaitez faire construire à Thorigny ? Voici toutes les informations à connaître sur notre nouveau lotissement :

LOCALISATION : Entre la rue des Rosiers et la rue des Sables.
COMMERCIALISATION : La commercialisation des lots débutera en avril et les premiers permis de construire pourront être déposer mi-septembre 2022.
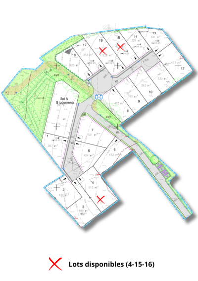
LES LOTS : Ce lotissement comptera 23 lots, donc 18 à commercialiser. Ces terrains constructibles et viabilisées iront de 329M² à 610M².
LE PRIX : Vous trouverez ci-dessous la délibération avec les tarifs pour chacun des lots.

ET POUR METTRE UNE OPTION OU RESERVER UN LOT ? Rien de plus simple !
Il suffit de contacter la Mairie par téléphone au 02.51.07.23.64 ou par mail à mairie.accueil@thorigny-vendee.fr
Vous pouvez également vous rendre à l'accueil directement.

VOUS AVEZ UN DOUTE ? Pas de panique !
Il est possible de mettre simplement une option sur une parcelle, cela ne vous engage à rien.
Dès lors qu'une autre personne souhaite le même lot que vous, nous vous recontacterons avant de lui attribuer celui-ci pour connaître votre décision.
Retrouvez dès maintenant ci-dessous, en Mairie et sur notre Instagram, les plans et détails des lots.

 

IL RESTE EGALEMENT UN LOT AU LOTISSEMENT LES TREILLES ET UNE PARCELLE RUE DES SABLES.


A vos marques...prêts...Construisez...

Ci-dessous, retrouver le plan des parcelles encore disponibles et celles déjà réservées, à jour du 05.04.2023.

TREILLES
image